Villa a schiera in vendita

Selargius, Via XXV Aprile
€ 340.000
4 locali 4 locali
125 Mq 125 Mq
2 bagni 2 bagni

Villa a schiera in vendita

Selargius, Via XXV Aprile

Descrizione annuncio

Villette di nuova costruzione in classe energetica A4

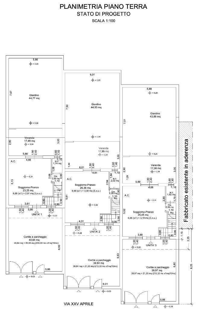
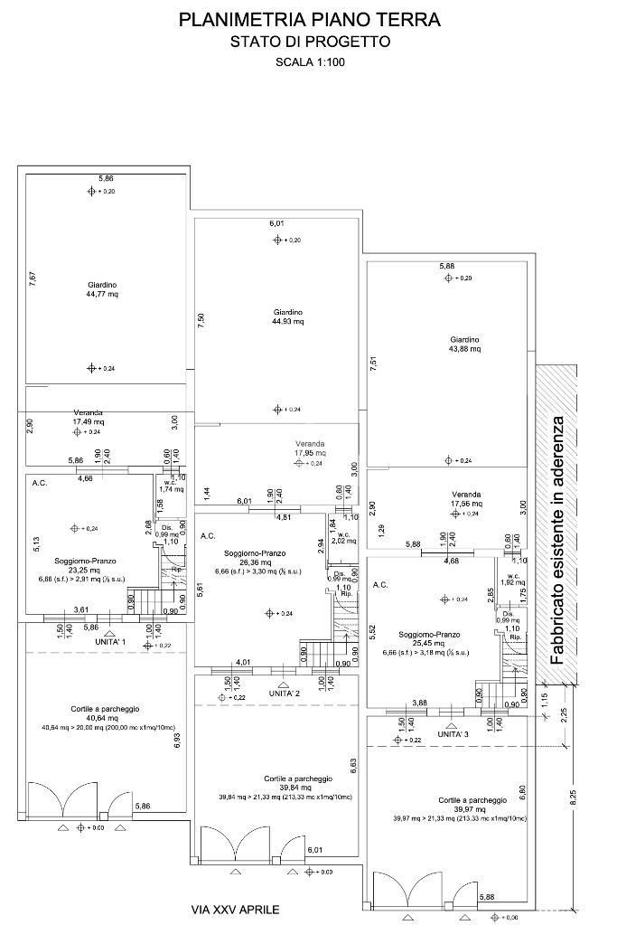
In vendita eleganti villette di nuova costruzione, disposte su due livelli e dotate di cortile privato sia sul fronte che sul retro. Ogni unità dispone di un comodo posto auto interno, situato nel cortile frontale.

La zona giorno, luminosa e accogliente, è composta da un ampio soggiorno con angolo cottura, bagno e una spaziosa veranda affacciata sul giardino retrostante, nella quale verranno installate le vetrate VEPA e predisposti impianti ideale per momenti di relax.

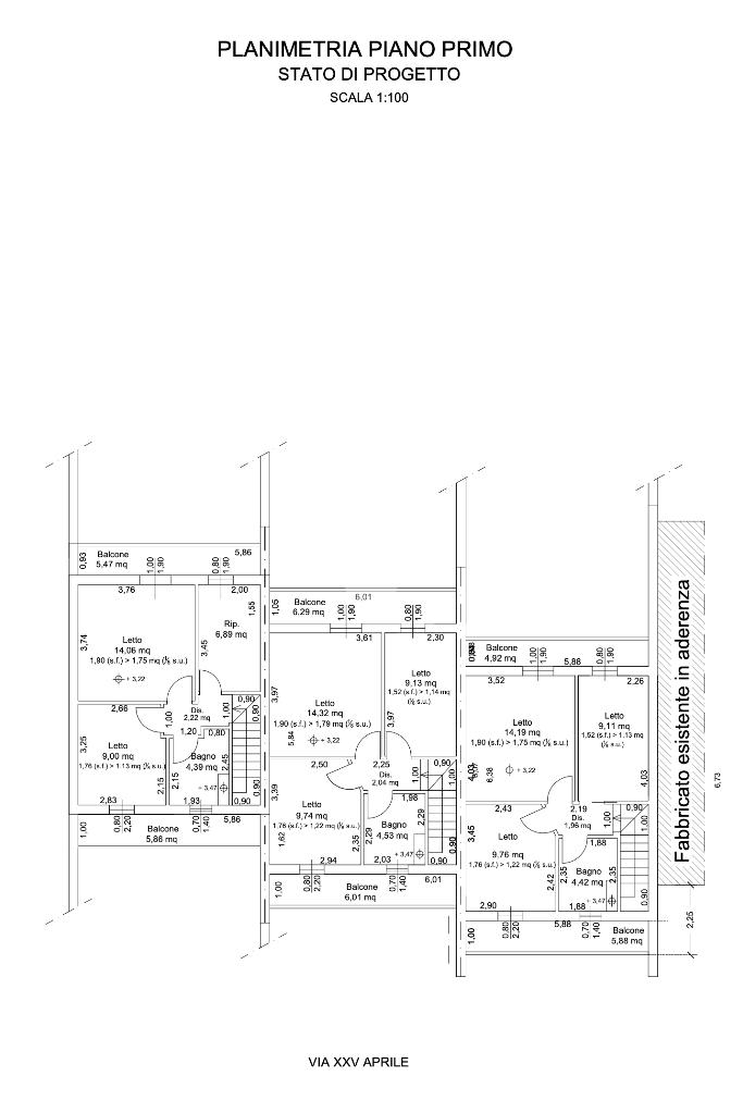
Al piano superiore, la zona notte ospita tre camere da letto e un secondo bagno con doccia, perfetto per soddisfare le esigenze di tutta la famiglia.

Le villette saranno realizzate con materiali di ultima generazione, progettate per garantire elevate prestazioni energetiche e un significativo risparmio sui consumi, in classe A4 (nzeb) grazie all'impianto fotovoltaico autonomo di 3,5 kw.

Consegna: Settembre 2026.

Per ulteriori dettagli e per visionare il progetto, è possibile fissare un appuntamento in ufficio con il consulente dedicato al cantiere.

Mostra tutto

Nelle vicinanze

Trasporto pubblico Trasporto pubblico
Monserrato
Monserrato
1,4 Km
Redentore
Redentore
1,5 Km
Selargius
Selargius
1,5 Km
Riu Mortu (ang. via Zuddas)
Riu Mortu (ang. via Zuddas)
690 m
Zuddas (ang. vico Zuddas)
Zuddas (ang. vico Zuddas)
760 m
Scuole Scuole
Scuole
470 m
Scuola elementare Santa Lucia
470 m
Scuola media Dante Alighieri (succursale di San Lussorio)
520 m
Asilo nido
680 m
Scuola media inferiore Dante Alighieri
720 m
Farmacia Farmacia
Parafarmacia
260 m
Farmacia Avataneo
560 m
Pararmacia Garau
810 m
Farmacia
900 m
Parafarmacia Conad
1,8 Km
Ospedali Ospedali
Ospedali
2,3 Km
Supermercati Supermercati
EuroSpin
190 m
Super Pan
250 m
Simply Market
410 m
Nonna isa
1,3 Km
MD
1,4 Km
Negozi Negozi
Clothes for babies
260 m
Negozi
660 m
Pizzeria Forno Napoletano
840 m
I Cherchi
840 m
Sigma
2,1 Km
Bar Bar
Bar
430 m
Bar Centrale di Loddo Landerino
1,7 Km
Coco
2,1 Km
Fruit Bar
2,4 Km
Fango
3,0 Km
Ristoranti Ristoranti
L'Angolo della Pizza
360 m
L'angolo della pizza
360 m
Pizzeria mai dire italia
540 m
L'elfo
980 m
Old Wild West
1,3 Km
Mostra tutto

Caratteristiche

Rif.:
61101598
Piano:
Terra con giardino di 2
Totale piani:
2
Posti auto:
1
Balconi:
1
Camere da letto:
3
Mostra tutto
Prezzo Prezzo
€ 340.000
Rata mutuo Rata mutuo
€ 1.509 / mese
Spese annue Spese annue
€ 0
Proponi il tuo prezzoProponi il tuo prezzo

Altre caratteristiche

Classe Energetica

A4
A4
A4
A4
A4
A4
A4
A4
A4
EP globale non rinnovabile:
5.89 kW h/m² anno
EP invernale del fabbricato:
EP estiva del fabbricato:
Anno di costruzione:
2025
Riscaldamento:
Autonomo
Tipo impianto:
Ad aria
Tipo alimentazione:
Aria

Ti interessa visionare l'immobile?

Fissa un appuntamento  Fissa un appuntamento

Richiedi informazioni

* Questi campi sono obbligatori

Calcola il tuo mutuo

Semplice e senza impegno
Anticipo

( % )
Mutuo

( % )

pochi semplici passi

inserisci i tuoi dati
Questionario completato
Grazie per aver richiesto un appuntamento senza impegno con un nostro Consulente del Credito e Assicurativo.

Hai inserito correttamente tutti i dati necessari e a breve riceverai una e-mail con un link da convalidare per inviare i tuoi dati.
Affiliato
Tecnoselargius Srl
Via Istria, 64 09047 Selargius (CA)

Il nostro staff


  • Windy Walther
    Affiliato

  • Silvia Nossardi
    Responsabile

  • Alessandro Cocco
    Collaboratore

  • Consuelo Monni
    Collaboratrice

  • Jessica Piras
    Coordinatrice
Via Istria, 64 09047 Selargius (CA)
Zona: Selargius
Mostra su mappa
Orari: Lunedì-Giovedì 09:00 - 13:00 -- 15:00 - 19:00, Venerdì orario continuato 09:00 - 18:00, Sabato 09:00 - 13:00
Affiliato
Tecnoselargius Srl
Via Istria, 64 09047 Selargius (CA)

2025 Tecnocasa Franchising S.p.A. - P. IVA 08365160152 - Via Monte Bianco 60/A 20089 Rozzano (MI). Ogni agenzia ha un proprio titolare ed è autonoma. Privacy policy | Policy utilizzo | Cookie policy